Típusház 2

Típusház 2

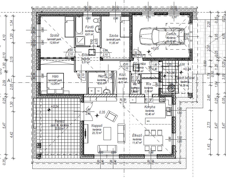
Nettó hasznos alapterület: 113.56 m2
Szintek száma: Egyszintes
Szobák száma: 4
Fürdőszobák száma: 1
Terasz: Van
Garázs: Van
Energetikai besorolás: AA+
Beépítési lehetőségek: Oldalhatárosan, vagy szabadonállóan beépíthető alaprajzokkal

Leírás:

Ez a 113,56 m² nettó hasznos alapterületű, egyszintes családi ház modern kialakításával (nappali + 3 szobájával) és praktikus belső elrendezésével kínál kényelmes életteret. A tágas nappalihoz három külön nyíló szoba társul, míg a fürdőszobában elhelyezett WC mellett egy különálló mellékhelyiség is biztosítja a kényelmet. A 23,55 m²-es fedett terasz kiváló helyszín a szabadtéri pihenéshez, a 22,07 m²-es garázs pedig védett parkolást tesz lehetővé. Az otthon alacsony üzemeltetési költségéről hőszivattyús fűtés, napelemes rendszer energiatárolóval, valamint a Loxone intelligens otthonrendszer támogatja.
Emelt szerkezetkész ár (bruttó): 71 899 717 Ft

Az alapár tartalmazza:

*A feltüntetett ár a telek és a közmű bevezetésének díját nem tartalmazzák.

Az alapár tartalmazza:

Az IER célja, hogy minden otthonunk ne csak
energiatakarékos legyen, hanem valóban intelligens és önálló is – így
kényelmesebb, gazdaságosabb, és fenntartható életet kínálunk lakóinknak.

Az IER saját fejlesztésű energiamenedzsment
rendszerünk, mely teljes körűen integrálja az alábbi rendszereket:

  • Padlófűtés vezérlés (helyiségenkénti hőmérséklet szabályzással)
  • Elektromos redőnymozgatás évszakoknak és a napszakoknak megfelelően
  • Napelemes rendszer optimalizálása és tárolókapacitás figyelembevételével
  • Energiafogyasztás valós idejű megjelenítése és statisztikái
  • Távoli elérés (telefonos applikáció, webes felület)


A telepített IER központilag vezérli az épület fűtési,
hűtési, árnyékolási és napelemes rendszerét. Online hozzáférést és
energiaoptimalizálást biztosít, valamint statisztikai adatokat szolgáltat az
energiafelhasználásról.

A karbantartás főbb elemei:

1. IER rendszer ellenőrzése és optimalizálása
2. Napelemes rendszer műszaki felülvizsgálata
3. Energiatároló (akkumulátor) egység karbantartása
4. Hőszivattyús fűtési és hűtési rendszer karbantartása
5. Biztonsági funkciók tesztelése
Bővebben itt.

*A feltüntetett ár a telek és a közmű bevezetésének díját nem tartalmazzák.

Miért érdemes a típustervek közül
választanod?

További típusházaink