Típusház 1

Típusház 1

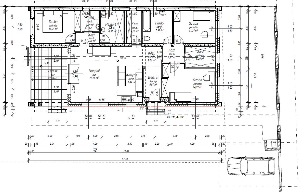
Nettó hasznos alapterület: 110.82 m2
Szintek száma: Egyszintes
Szobák száma: 4
Fürdőszobák száma: 2
Terasz: Van
Garázs: Nincs
Energetikai besorolás: AA+
Beépítési lehetőségek: Oldalhatárosan, vagy szabadonállóan beépíthető alaprajzokkal

Leírás:

Ez a modern, egyszintes családi ház 110,82 m² nettó hasznos alapterületével, nappali + 3 szobájával ideális választás családok számára. A praktikus elrendezés egy tágas nappalit és három kényelmes hálószobát kínál, két fürdőszobával kiegészítve. A 17,59 m²-es fedett terasz kellemes kültéri kikapcsolódást biztosít. Az otthon alacsony üzemeltetési költségéről hőszivattyús fűtés, napelemes rendszer energiatárolóval, valamint Loxone intelligens otthonautomatizálás gondoskodik.
Emelt szerkezetkész ár (bruttó): 65 436 220 Ft

Az alapár tartalmazza:

*A feltüntetett ár a telek és a közmű bevezetésének díját nem tartalmazzák.

Az alapár tartalmazza:

Az IER célja, hogy minden otthonunk ne csak
energiatakarékos legyen, hanem valóban intelligens és önálló is – így
kényelmesebb, gazdaságosabb, és fenntartható életet kínálunk lakóinknak.

Az IER saját fejlesztésű energiamenedzsment
rendszerünk, mely teljes körűen integrálja az alábbi rendszereket:

  • Padlófűtés vezérlés (helyiségenkénti hőmérséklet szabályzással)
  • Elektromos redőnymozgatás évszakoknak és a napszakoknak megfelelően
  • Napelemes rendszer optimalizálása és tárolókapacitás figyelembevételével
  • Energiafogyasztás valós idejű megjelenítése és statisztikái
  • Távoli elérés (telefonos applikáció, webes felület)


A telepített IER központilag vezérli az épület fűtési,
hűtési, árnyékolási és napelemes rendszerét. Online hozzáférést és
energiaoptimalizálást biztosít, valamint statisztikai adatokat szolgáltat az
energiafelhasználásról.

A karbantartás főbb elemei:

1. IER rendszer ellenőrzése és optimalizálása
2. Napelemes rendszer műszaki felülvizsgálata
3. Energiatároló (akkumulátor) egység karbantartása
4. Hőszivattyús fűtési és hűtési rendszer karbantartása
5. Biztonsági funkciók tesztelése
Bővebben itt.

*A feltüntetett ár a telek és a közmű bevezetésének díját nem tartalmazzák.

Miért érdemes a típustervek közül
választanod?

További típusházaink